Leben Steine?

21.04.2021

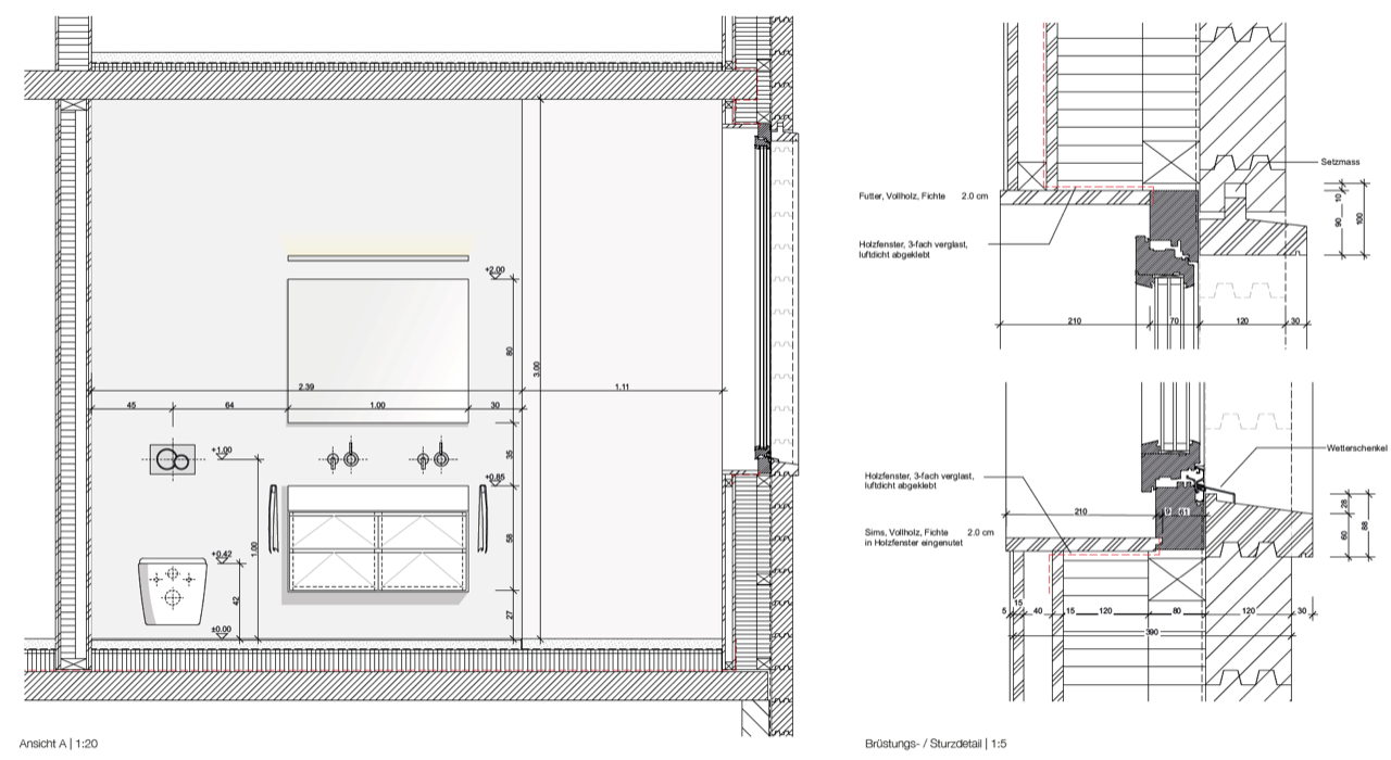
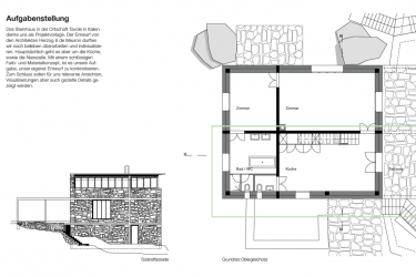
Im Fach Baukonstruktion durften die Studierenden des 3. Semester HF Innenarchitektur Konstruktionen und Details entwickeln, und zwar für ein Steinhaus der Architektur-Ikonen Herzog & de Meuron in Tavole, Italien. Unser Dozent Ivano Iseppi hat zusammen mit Ruedi Enzler diese Aufgabe begleitet.

Und auf die Frage: Ob Steine leben? Jedenfalls lässt es sich umgeben von Steinen gut leben!